
Фильтр ФГГ
цена от
286 800 руб.
- Фильтры-грязеуловители горизонтальные ФГГ-200 Ду 200 мм
- Фильтры-грязеуловители горизонтальные ФГГ-250 Ду 250 мм
- Фильтры-грязеуловители горизонтальные ФГГ-300 Ду 300 мм
- Фильтры-грязеуловители горизонтальные ФГГ-350 Ду 350 мм
- Фильтры-грязеуловители горизонтальные ФГГ-400 Ду 400 мм
- Фильтры-грязеуловители горизонтальные ФГГ-500 Ду 500 мм
- Фильтры-грязеуловители горизонтальные ФГГ-600 Ду 600 мм
- Фильтры-грязеуловители горизонтальные ФГГ-700 Ду 700 мм
- Фильтры-грязеуловители горизонтальные ФГГ-800 Ду 800 мм
- Фильтры-грязеуловители горизонтальные ФГГ-1000 Ду 1000 мм
- Фильтры-грязеуловители горизонтальные ФГГ-1200 Ду 1200 мм
Горизонтальные фильтры-грязеуловители ФГГ с быстросъемным концевым затвором — это ключевые элементы для обеспечения чистоты нефти и нефтепродуктов на всех этапах их транспортировки и переработки. Устройства эффективно удаляют механические примеси: песок, окалину, металлические частицы и другие загрязнения, которые становятся причиной коррозии трубопроводов, износа насосного оборудования, снижения КПД перерабатывающих систем. Установка ФГГ особенно актуальна на магистральных нефтепроводах, нефтеперекачивающих станциях (НПС), а также на НПЗ для минимизации рисков аварийных остановок. Производство соответствует требованиям ОТТ-75.180.00-КТН-179-10 ОАО «АК «Транснефть», ГОСТ 33368-2015 и ГОСТ 34347-2017.
Фильтры ФГГ в Липецке используются для очистки:
- Товарной нефти;
- Автомобильного бензина;
- Дизельного топлива;
- Авиационного керосина;
- Судового мазута;
- Индустриальных масел.
Производитель фильтров ФГГ — ООО "УЗСК"
Компания ООО «УЗСК» — это ведущий российский производитель фильтров-грязеуловителей с полным циклом разработки и контроля качества. Преимущества сотрудничества с нами:
- Собственный конструкторский отдел — проектируем фильтры под индивидуальные параметры заказчика. Например, для работы с высокоабразивными средами разрабатываем модели с увеличенной осадочной камерой.
- Современное производство — изготавливаем нестандартные фильтры любой сложности по ТЗ или чертежам.
- Строгий контроль качества — испытания на гидростенде (до 50 МПа), проверка сварных швов методом неразрушающего контроля.
- Гибкая логистика — доставка в Липецке, регионы РФ, страны ЕАЭС и СНГ.
Примеры применения фильтров ФГГ
Фильтры-грязеуловители ФГГ от ООО «УЗСК» успешно внедрены на объектах:
- Магистральные нефтепроводы «Транснефть» (участки с повышенным содержанием песка);
- НПС «Роснефть» в регионах с сейсмической активностью до 9 баллов;
- ТЭЦ, использующие мазут в качестве топлива;
- Химические предприятия, перерабатывающие нефтепродукты.
Сферы использования фильтров ФГГ
- Нефтегазовая отрасль:
- Очистка сырья на этапах добычи, подготовки и транспортировки;
- Защита оборудования НПС и компрессорных станций.
- Промышленность:
- Фильтрация нефтепродуктов на металлургических и нефтехимических заводах;
- Интеграция в технологические линии для предотвращения засоров.
- Энергетика:
- Очистка топлива для турбин и горелок;
- Снижение рисков аварий на ТЭС.
- Транспортная инфраструктура:
- Обеспечение чистоты судового топлива;
- Фильтрация авиационного керосина.
Технические преимущества фильтров ФГГ
- Многоступенчатая очистка — гравитационное осаждение + сетчатые элементы.
- Универсальность — монтаж на трубопроводах DN 200–1200 мм.
- Долговечность — корпус из углеродистой, низколегированной или нержавеющей стали с антикоррозийным покрытием.
- Экономия — сокращение расходов на ремонт оборудования.
- Автоматизация — опциональная установка датчиков давления и перепускных клапанов.
Конструктивные особенности ФГГ
- Корпус
- Цилиндрическая форма из стали, устойчивая к деформациям.
- Возможность выбора материала: углеродистая сталь (стандарт), нержавейка (для агрессивных сред).
- Герметичность, исключающая утечки.
- Фильтрующие элементы
- Съемные кассеты (сетчатые, перфорированные).
- Грубая (до 25 мм) и тонкая (до 4 мм) очистка.
- Осадочная камера
- Накопление до 40% загрязнений до попадания на фильтрующие элементы.
- Наклонное дно для упрощения удаления шлама.
- Система контроля
- Датчики давления и перепускные клапаны для автоматизации процессов.
Технические параметры
| Модель | DN, мм | Пропускная способность, м³/ч | Давление (PN), МПа | Температура, ℃ |
| ФГГ-200 | 200 | 200 | 1,6–10,0 | -15…+80 |
| ФГГ-250 | 250 | 300 | 1,6–10,0 | -15…+80 |
| ФГГ-300 | 300 | 500 | 1,6–10,0 | -15…+80 |
| ФГГ-350 | 350 | 600 | 1,6–10,0 | -15…+80 |
| ФГГ-400 | 400 | 800 | 1,6–10,0 | -15…+80 |
| ФГГ-500 | 500 | 1200 | 1,6–10,0 | -15…+80 |
| ФГГ-600 | 600 | 1800 | 1,6–10,0 | -15…+80 |
| ФГГ-700 | 700 | 2500 | 1,6–10,0 | -15…+80 |
| ФГГ-800 | 800 | 3000 | 1,6–10,0 | -15…+80 |
| ФГГ-1000 | 1000 | 5100 | 1,6–10,0 | -15…+80 |
| ФГГ-1200 | 1200 | 6400 | 1,6–10,0 | -15…+80 |
Примеры модификаций ФГГ
- Сейсмостойкие модели — для регионов с активностью до 10 баллов (например, Дальний Восток).
- Блочные комплектации — с лебедкой, поддоном и площадкой для обслуживания (применяются на удаленных НПС).
- Теплоизолированные версии — для работы в условиях Крайнего Севера.
Расшифровка условного обозначения
Например, фильтр грязеуловитель горизонтальный ФГГ номинальным диаметром DN 500 на номинальное давление PN 6,3 МПа, блочного исполнения, с осевым отводом нефти или нефтепродуктов, с левым расположением патрубка подвода нефти или нефтепродуктов, в сейсмостойком исполнении С по MSK — 64 [10], подлежащий теплоизоляции, вид климатического исполнения ХЛ1 по ГОСТ 15150 будет обозначаться следующим образом: ФГГ-500-6,3-Б-0-Л-С-Т-ХЛ1.
Принцип работы
- Подача нефти через входной патрубок с дефлектором для равномерного распределения потока.
- Гравитационное осаждение крупных частиц в нижней камере.
- Фильтрация через кассеты — задержка мелких примесей.
- Контроль давления — при засоре система перенаправляет поток через перепускной клапан.
- Вывод очищенного продукта через верхний патрубок.
Фильтр ФГГ: конструктивные размеры
| Обозначение | ФГГ 200 | ФГГ 250 | ФГГ 300 | ФГГ 350 | ФГГ 400 | ФГГ 500 | ФГГ 600 | ФГГ 700 | ФГГ 800 | ФГГ 1000 | ФГГ 1050 | ФГГ 1200 |
| DN, мм | 200 | 250 | 300 | 350 | 400 | 500 | 600 | 700 | 800 | 1000 | 1050 | 1200 |
| Dp, мм | 500 | 500 | 600 | 700 | 700 | 1000 | 1200 | 1200 | 1300 | 1600 | 1600 | 1600 |
| L, мм | 2600 | 2600 | 3300 | 4200 | 4400 | 4400 | 4500 | 4500 | 5300 | 6850 | 6850 | 7410 |
| L1, мм | 1100 | 1400 | 1400 | 1500 | 1800 | 1900 | 1900 | 1900 | 1900 | 1930 | 1930 | 1950 |
| H, мм | 950 | 950 | 1000 | 1000 | 1050 | 1100 | 1200 | 1300 | 1400 | 1500 | 1500 | 1600 |
| L2, мм | 1100 | 1100 | 1600 | 2100 | 2300 | 2300 | 2400 | 2500 | 2800 | 4440 | 4440 | 5000 |
| L3, мм | 1000 | 1000 | 1200 | 1200 | 1200 | 1200 | 1200 | 1200 | 1760 | 1760 | 1760 | 1760 |
Примечания к таблице:
|
||||||||||||
Чертеж фильтра грязеуловителя ФГГ
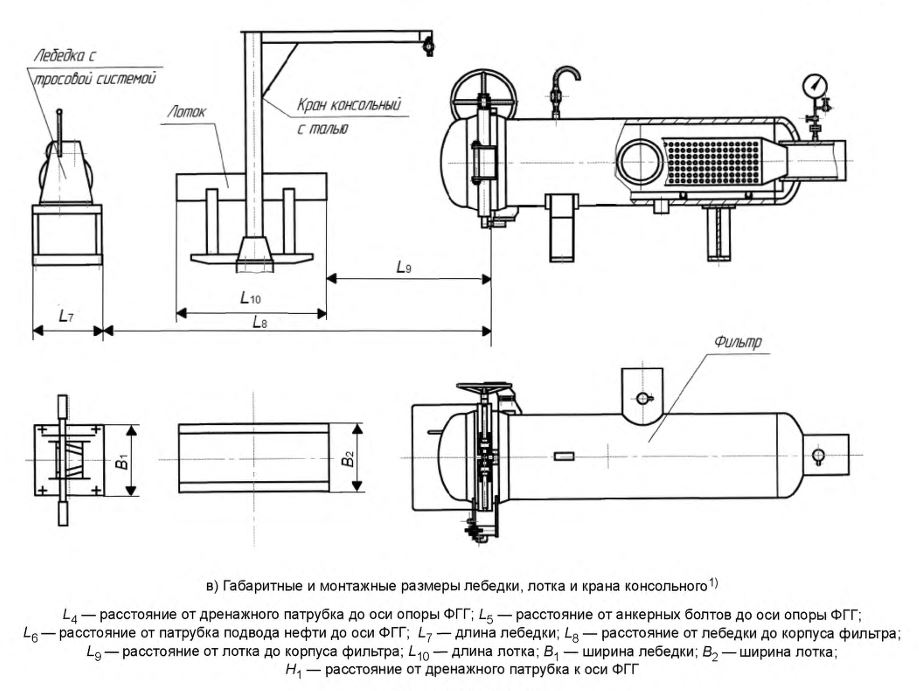
Монтажные размеры фильтра ФГГ в блочном исполнении
| Обозначение | ФГГ 200 | ФГГ 250 | ФГГ 300 | ФГГ 350 | ФГГ 400 | ФГГ 500 | ФГГ 600 | ФГГ 700 | ФГГ 800 | ФГГ 1000 | ФГГ 1050 | ФГГ 1200 |
| L7, мм | 950 | 950 | 950 | 950 | 950 | 1600 | 1600 | 1700 | 1700 | 1700 | 1700 | 1700 |
| L8, мм | 7000 | 7000 | 7000 | 7000 | 7000 | 7000 | 7000 | 7840 | 7840 | 12550 | 12550 | 12550 |
| L9, мм | 425 | 425 | 425 | 440 | 450 | 840 | 940 | 940 | 1030 | 1055 | 1055 | 1055 |
| L10, мм | 2030 | 2030 | 2400 | 3200 | 3400 | 4000 | 4000 | 4200 | 4200 | 8290 | 8290 | 8290 |
| В2, мм | 650 | 650 | 650 | 650 | 800 | 800 | 800 | 905 | 1000 | 1100 | 1200 | 1300 |
| В1, мм | 800 | 800 | 800 | 800 | 800 | 800 | 800 | 1200 | 1200 | 1520 | 1520 | 1520 |
| L5, мм | 0 | 0 | 0 | 0 | 0 | 70 | 70 | 70 | 80 | 100 | 100 | 100 |
| L6, мм | 675 | 675 | 730 | 780 | 780 | 950 | 1050 | 1050 | 1150 | 1250 | 1300 | 1300 |
| L4, мм | 400 | 600 | 750 | 1250 | 1300 | 1300 | 1400 | 1400 | 1400 | 1960 | 2000 | 2000 |
| Н1, мм | 420 | 420 | 470 | 530 | 530 | 700 | 800 | 800 | 850 | 1000 | 1000 | 1020 |
| Радиус вылета быстроразъемного концевого затвора, мм | 950 | 950 | 1030 | 1330 | 1330 | 1360 | 1890 | 1890 | 2100 | 2220 | 2220 | 2220 |
| Количество штурвалов быстроразъемного концевого затвора, шт | 1 | 1 | 1 | 1 | 1 | 2 | 2 | 2 | 2 | 2 | 2 | 2 |
Примечания к таблице:
|
||||||||||||
Чертеж блочного фильтра грязеуловителя ФГГ
Почему выбирают ООО "УЗСК"?
- Соблюдение сроков — производство под заказ от 20 рабочих дней.
- Гарантия от года на все модели.
- Техподдержка — помощь в подборе и монтаже.
Фильтры-грязеуловители ФГГ от ООО «УЗСК» — это современное решение для защиты нефтепроводов, НПС и промышленного оборудования. Индивидуальный подход, соответствие ГОСТ и доставка в Липецке делают сотрудничество с нами выгодным и надежным.
Ключевые преимущества для нефтегазовой отрасли
- Снижение затрат на ремонт трубопроводов;
- Увеличение межсервисных интервалов;
- Соответствие требованиям «Транснефть» и «Роснефть».
Закажите фильтр ФГГ прямо сейчас и обеспечьте бесперебойную работу ваших объектов!
Заполните форму заказа






